Půdorysy Poláková
úvod
služby
portfolio
o mně
kontakt
RD
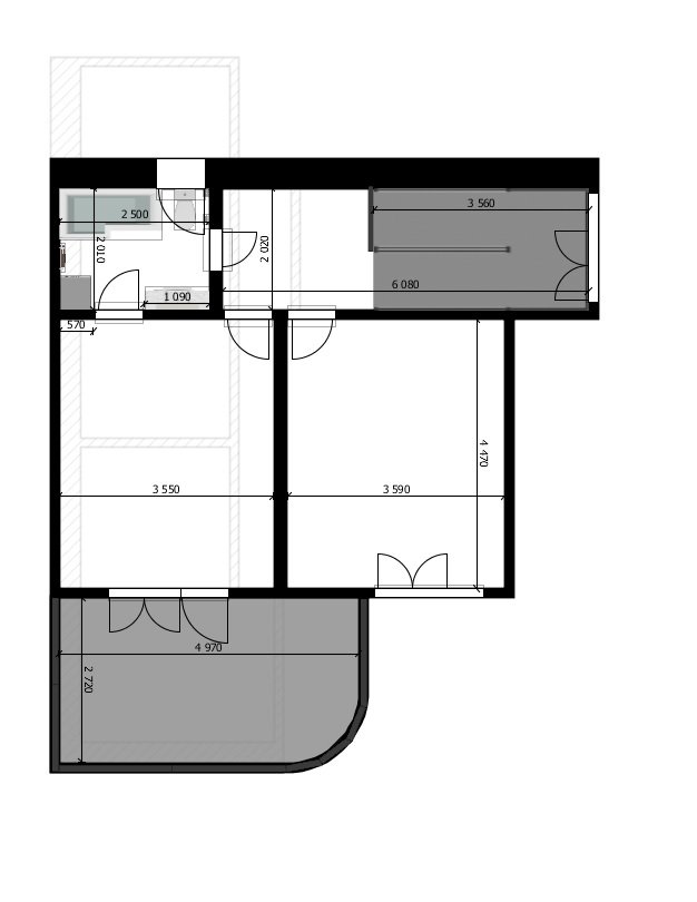
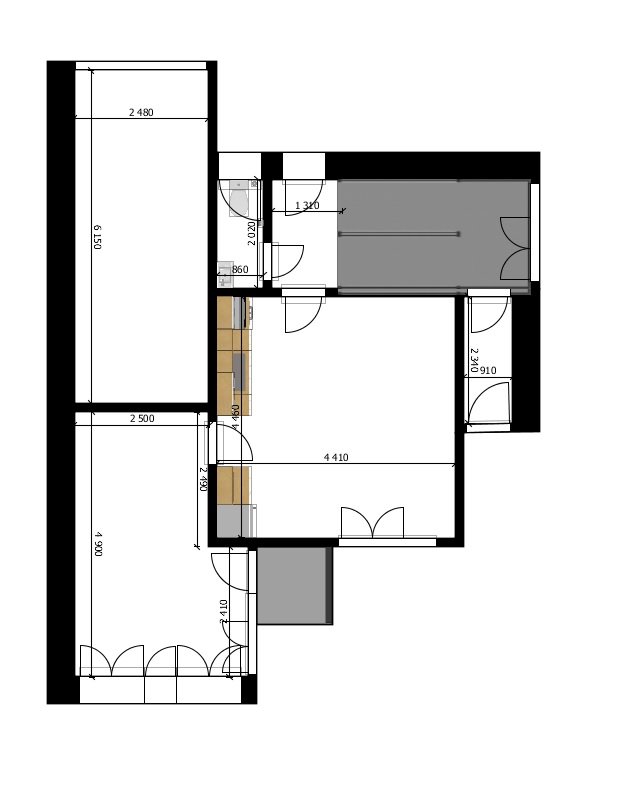
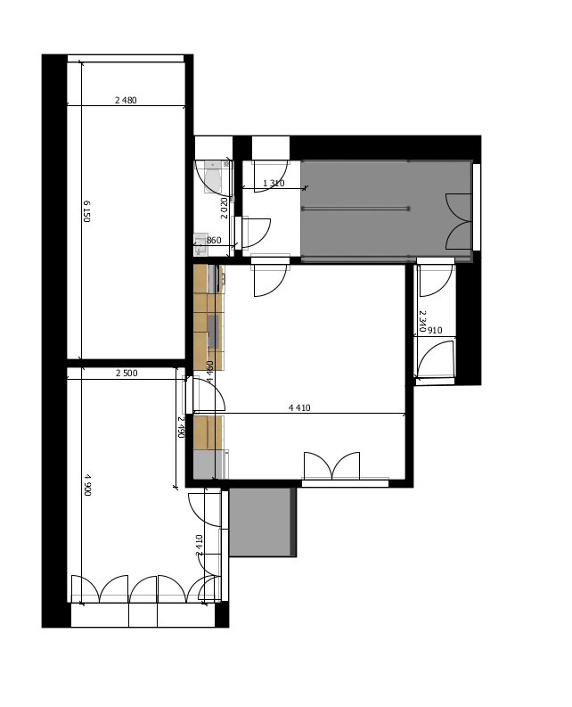
Popis projektu
Datum realizace: 17. 09. 2025
Galerie
zobrazit všechny projekty