Půdorysy Poláková
úvod
služby
portfolio
o mně
kontakt
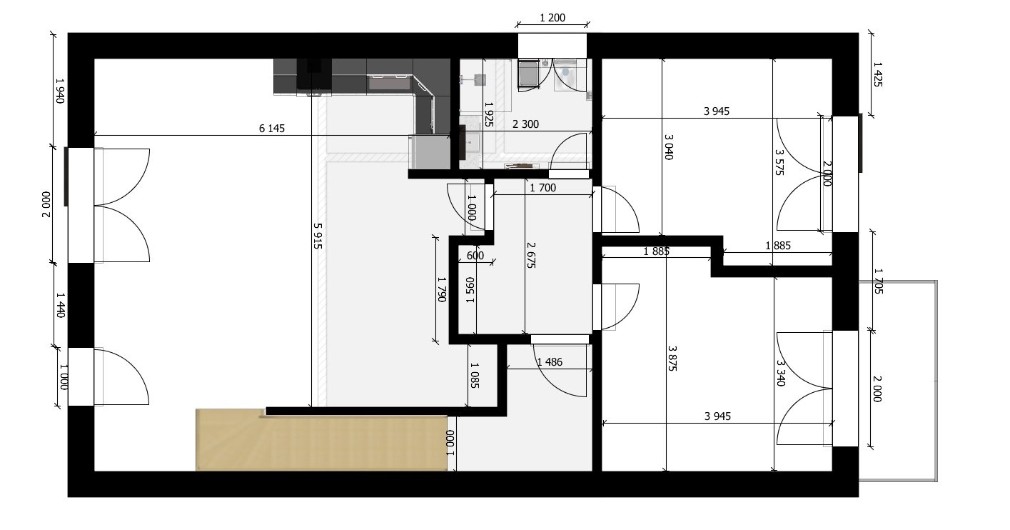
Mezonet byt
Popis projektu
Datum realizace: 17. 09. 2025
Galerie
zobrazit všechny projekty